03 Апр 2019
Воронеж, Дизайнер Дарья Копылова
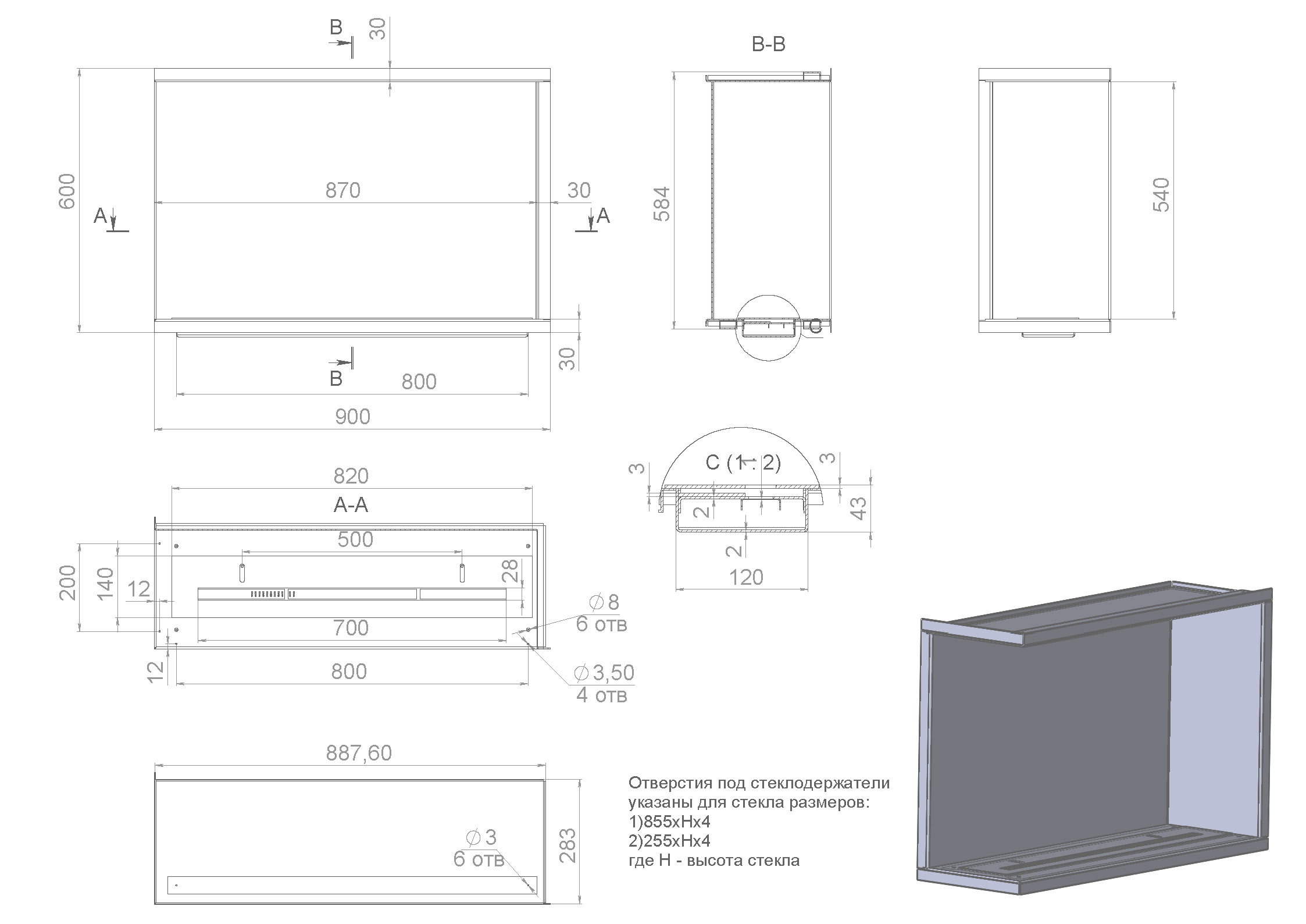
Проект № 237. Встраиваемый угловой биокамин
03 Апр 2019
Воронеж, Дизайнер Дарья Копылова
По проекту дизайнера Дарьи Копыловой (dariakopylova.ru) спроектировали и изготовили встраиваемый угловой левый биокамин для загородного дома. В комплектацию входит стекло стемалит на заднюю стенку, два защитных стекла. Окраска корпуса черный Муар.
Характеристики
- Ширина, мм 900
- Высота, мм 600
- Глубина, мм 300
- Материал корпуса сталь
- Линия огня, мм 700
Поделиться статьей:
Товары из кейса
В наличии
Торцевой биокамин
Firezo Estremità 1400
Габариты ШxГxВ (мм)
1400x200x450
Линия огня, (мм):
900
83 500 ₽
NEW
В наличии
Встраиваемый биокамин
Firezo Classic 1000
Габариты ШxГxВ (мм)
1000x200x400
Линия огня, (мм):
600
55 500 ₽
В наличии
Торцевой биокамин
Firezo Estremità 1000
Габариты ШxГxВ (мм)
1000x200x400
Линия огня, (мм):
600
57 500 ₽
Видеообзоры наших каминов
Видеообзор Биокамина Kratki GOLF
Видеообзор Биокамина Kratki BRAVO
Online-показ
Для всех регионов РФ
Приглашаем вас на онлайн-показ самых современных и востребованных каминов! Вы сможете не только оценить внешние преимущества понравившейся модели не выходя из дома, но и самостоятельно сравнить разные варианты и проконсультироваться со специалистом. Ждем вас в гости!
